Mezzanine & Fit Out, Tewkesbury

Turnkey Mezzanine Floor & Fit Out in Tewkesbury

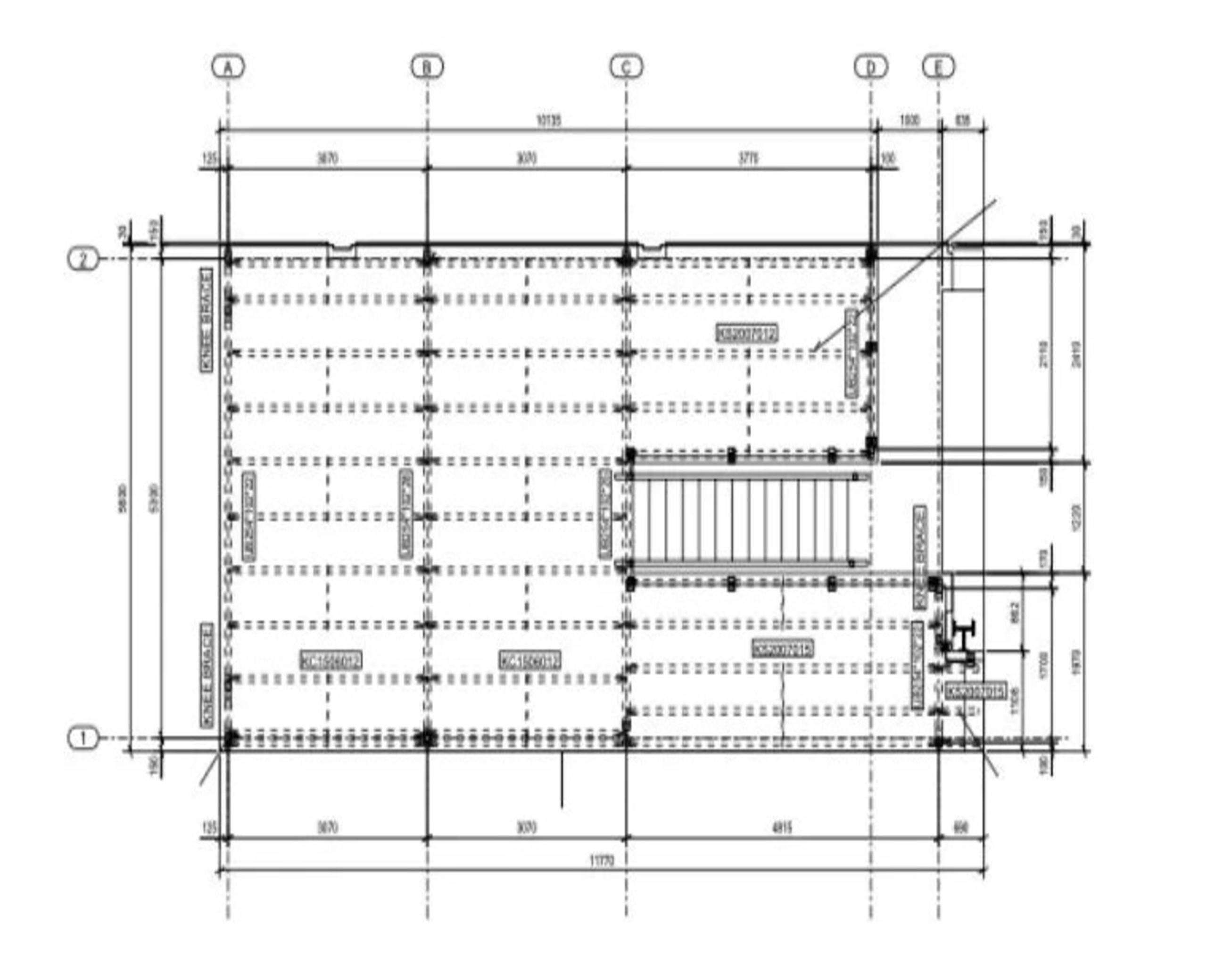
  • Complete design and build of a mezzanine floor extension in Tewkesbury, together with follow on fire rating and fit out works.
  • 56m2 mezzanine floor
  • Full CAD/CAM design with structural calculations.
  • Upon design sign off, manufacturing was quickly undertaken and steelwork erected over several days.
  • Once the structure was built, it was ’fire rated’ and suspended ceiling installed to comply with Building Control Regulations.
  • A ground floor kitchen and staff canteen was then created and a new WC fitted out.
  • All our mezzanines are provided with CE mark certification and full loading and structural calculations.
  • Building control approval undertaken by Advantage making the end to end process extremely straight forward for the customer.
  • The project was finished on time and on budget.