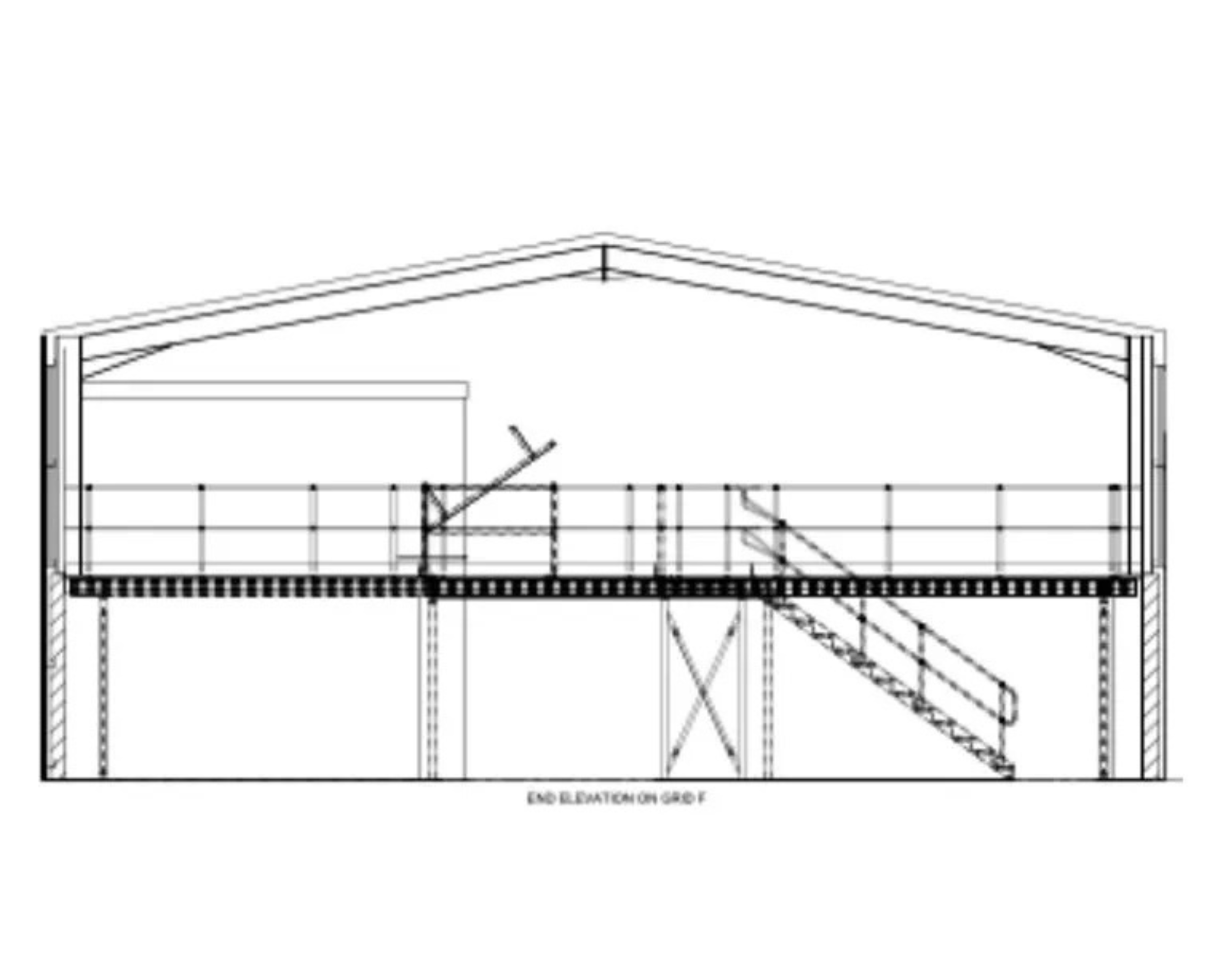
Mezzanine Floor, Bromsgrove

Complete design and build of a small mezzanine floor in Bromsgrove.

  • 152m2 mezzanine floor for storage use.
  • Full CAD/CAM design with structural calculations.
  • Upon design sign off, manufacturing was quickly undertaken and steelwork erected over several days.
  • Included a pallet safety gate for ease of loading/unloading the mezzanine whilst maintaining staff safety.
  • Building control approval undertaken by Advantage making the end to end process extremely simple for the customer.
  • All our mezzanines are provided with CE mark certification and full loading and structural calculations.
  •  The project was finished on time and on budget including weekend working